道路橋示方書・同解説Ⅰ共通編、Ⅱ鋼橋編および鋼道路橋設計便覧に基づき、RC床版を有するトラス系およびアーチ系の床組(縦桁、横桁)の詳細設計を一貫して行えます。

特長

縦桁、横桁の一括計算により効率アップ

jsp_02w_01.png
  • RC床版を有するトラス系およびアーチ系の床組(縦桁、横桁)の詳細設計を一貫して行えます。
  • 路面位置は上路式、下路式に対応しています。

豊富な地覆、高欄形状に対応

jsp_02w_02.png
  • 地覆、高欄形状は以下の10種類から選択可能です。
    1. 国土交通省(車道、歩道)
    2. 東・中・西日本高速道路株式会社(ガードレール、フロリダ型、ニュージャージー型、中央分離帯)
    3. 首都高速道路株式会社
    4. 阪神高速道路株式会社
    5. 名古屋高速道路公社
    6. 福岡北九州高速道路公社

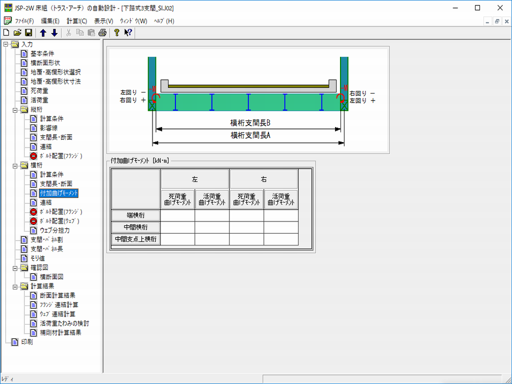
付加曲げモーメントの考慮が可能

jsp_02w_03.png
  • 縦桁で主構の死荷重(鋼重を除く)によるそりの変化に伴う付加曲げモーメントが考慮できます。
    なお、断面力の解析方法は変形法FRAMEで計算しています。

関連ニュース・イベント

ニュース
『令和7年道路橋示方書』対応製品のご案内
セミナー
橋梁設計技術者 初級講習会『線形座標計算 演習 JIP-LINER』《10月16日,17日》オンライン開催のご案内
セミナー
橋梁設計技術者 初級講習会『耐震 設計演習 JT-KOHKA』《10月2日,3日》オンライン開催のご案内
セミナー
橋梁設計技術者 初級講習会 『鋼橋 設計演習 JSP-1W,4W』《9月11日,12日》オンライン開催のご案内
ニュース
弊社製品のインターネット認証への移行(第二期)リリースのご案内