道路橋示方書・同解説Ⅰ共通編、Ⅱ鋼橋・鋼部材編に基づき、鋼床版鈑桁および鋼床版箱桁の概略設計(断面力算出、耐荷性能照査、疲労照査、数量計算、工数積算)を一貫して行えます。

特長

断面力算出から工数積算を一貫して実行

jsp_09w_01.png
  • 鋼床版鈑桁および鋼床版箱桁の概略設計(断面力算出、耐荷性能照査、疲労照査、数量計算、工数積算)を一貫して行えます。
  • 下部工設計用反力の計算ができます。

豊富な平面形状に対応

jsp_09w_02.png
  • 直線桁、曲線桁に加えて、斜角付き桁、バチ桁、および座標入力による任意形に対応しています。
  • 斜角付き桁の斜角指定方法は全横断で同一斜角、支点上横断のみ斜角、全横断で斜角に対応しています。

負反力の照査が可能

jsp_09w_03.png
  • 負反力照査式を切り替えて、負反力が確認できます。
  • 箱桁で負反力が生じた場合、外桁の支点を移動させ、負反力の解消が可能です。

既設橋梁の耐荷力照査が可能

jsp_09w_04.png
  • 「既設橋梁の耐荷力照査実施要領(案)」による載荷に対応しています。
  • 設計時応力度、現行荷重による応力度、載荷規制による応力度の比較および照査が可能です。

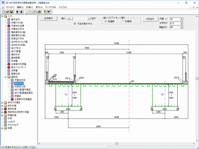
豊富な確認図とDXFファイルへの出力が可能

jsp_09w_05.png
  • 豊富な確認図により、視覚的に入力チェックが行えます。
  • 平面格子図、横断面図、桁高変化図、縦リブ配置平面図、縦リブ配置横断面図、荷重図、構造一般図などをDXFファイルに出力が可能です。

関連ニュース・イベント

ニュース
『令和7年道路橋示方書』対応製品のご案内
セミナー
橋梁設計技術者 初級講習会『線形座標計算 演習 JIP-LINER』《10月16日,17日》オンライン開催のご案内
セミナー
橋梁設計技術者 初級講習会『耐震 設計演習 JT-KOHKA』《10月2日,3日》オンライン開催のご案内
セミナー
橋梁設計技術者 初級講習会 『鋼橋 設計演習 JSP-1W,4W』《9月11日,12日》オンライン開催のご案内
ニュース
弊社製品のインターネット認証への移行(第二期)リリースのご案内